|
Neudeutsche Befestigung der Stadt Köln Fort VII- Zollstock

Das große Fort VII liegt östlich der Bahnlinie nach Trier. Die Festung wurde von März 1874 bis 1877 gebaut.
Die Anlage wurde durch das Holsteinische Fußartillerie Regiment 9 genutzt.
Die Bewaffnung bestand aus verschiedenen Kalibern, von 8cm bis 15cm.
Während der Nuzungszeit bekam die Festungsanlage auch prominenten Besuch, besonders zu Erwähnen wäre der Staatsbesuch im Jahre 1896 durch den chinesischen Vicekönig Lihungtschang mit Gefolge.
Wie eine Vielzahl der Kölner Festungswerke wurde auch dieses Werk mehrfach umgebaut und modernisiert. Den letzten und größten Umbau erfuhr das Fort aber erst kurz vor dem Ersten Weltkrieg, als man auf der rechten Seite über den Latrinen der Kehlkaserne eine Zwischenraumstreiche (Traditor) baute.
Hierbei handelte es sich um einen maßiven betonierten Artilleriebunker mit Zugang zur Kehlkaserne.Diese Kampfanlage war mit einem Panzerbeobachter und zwei modernen 7,7 cm Geschützen hinter Schartenplatte ausgerüstet.(Baugleich erhielt das Fort VI zwei dieser Anlagen). Somit konnten die Einfallstraßen und Bahnanlage hermetisch abgeriegelt werden.
Nach Ende des Ersten Weltkrieges verwaisten die Festungen. Das Festungsfernsprechnetz wurde sofort zerstört. Wichtige wertvolle Einbauten wie schwere Stromerzeuger wurden demontiert zum Teil geraubt. Metall war Mangelware, somit verschwand das Groh an metallischen Gegenständen.
Gemäß Versailler Abkommen setzte 1820 die Entfestigung der Kölner Festungsbauten ein, somit wurde der Preußischen Festungsbaukunst ein Ende gesetzt.
Beim Fort VII wäre es Beinahe zum Totalabriss gekommen, denn die damalige Reichsbahn wollte die gesamte Festung beseitigen um an dieser Stelle einen großen Güterbahnhof zu bauen. Es ist ein Glücksfall für die Festungsreste eingetreten.Denn die Bahn konnte nicht alle benötigten Grundstücke käuflich erwerben (Klageweg wurde verloren). Somit wurde die Anlage außerhalb des Festungsgeländes gebaut und ist heute noch in Betrieb.
Es gab diverse Nachnutzungsideen und Realisierungen. Auf diese möchte ich nicht ins Detail eingehen.
Der 2. Weltkrieg hat dort auch seine eigene Geschichte , würde den Rahmen der WEB-Präsentation sprengen.
Die Festungsanlage befindet sich bis heute im Besitz der Bahn. Ein gutes und vielversprechendes Nutzungskonzept wurde leider nicht realisiert. Somit befindet sich das Objekt wieder im "Dornröschenschlaf" und verfällt zusehens von Jahr zu Jahr.
An dieser Stelle möchte ich darauf hinweien das, dass zugängliche Gelände niemanden dazu verleiten soll, das Werk auf eigene Faust zu erkunden. Das Betreten des Werkes ist streng verboten (Hausfriedensbruch). Die Bausubstanz ist marode und birgt viele Gefahren.
Im Rahmen von offiziellen genehmigten Führungen ist der Zutritt erlaubt (sofern es noch diese Angebote geben wird).
Ähnliche Bauwerke kann man in Köln zu verschiedenen Terminen besichtigen.
Somit gibt es keine Probleme mit der Justiz, der Krankenkasse oder dem Bestatter.
 Fotogalerie (8 Fotos vom Außenbereich) 
 Fotogalerie (20 Fotos vom Innenbereich) 
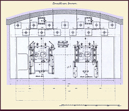
 Juli 1878. links Darstellung der Hohlbauten, rechts der Aufbauten und Oberflächengestaltung

Armierungsplan aus dem Jahre 1889 mit Einzeichnungen der Waffenbestückung
 Zustand während der Armierungszeit in Form einer vereinfachten Zeichnung.
.kl.jpg) Das Entfestigungsamt hat keine neue Entfestigungszeichnung erstellt, sondern den Plan aus der Armierungszeit übernommen. Entfestigungsmarkierungen wurden hinzugefügt.
Zahlen-Daten-Fakten
|
| Bezeichnung: |
Fort VII (Bewaffnungsangaben aus dem Jahr 1889) |
| Bewaffnung: |
8 x 8cm Kanonen als Grabenwehren 6 x 9cm Kanonen auf dem Flanken und Frontwall 2 lange 15cm Geschütze auf Ringlafette auf dem linken Frontwall 2 lange 15cm Geschütze auf Ringlafette auf dem rechten Frontwall 4 Mörsergeschütze mit 15cm-Kaliber in der linken Anschlussbatterie 4 x 12cm Geschütze in der linken Anschlussbatterie 4 lange 15cm und 6 kurze 15cm auf Ringlafette in der rechten Anschlußbatterie
|
| Besatzung: |
Als Artilleriefort ca. 900 Mann. Die Besatzungsstärke wurde nach Umwandlung in ein Infanteriefort erheblich reduziert. (Die Zahlenangaben entsprechen einem mittleren Fort. Die Besatzungsstärke bei einem Großen Fort muß nach oben korrigiert werden) |
| Größe: |
ca. 345 x 200m |
| Mauerstärken: |
ca. 1 - 3m |
| Deckenstärken: |
Standardmaß: 1m Ziegelmauerwerk - 1m Sandpolster - 1,20m Beton - 0,50m Erde |
| Aufzug: |
max. 9,5m |
| Graben: |
9m breit/ca. 6,50m tief |
| Entfestigt: |
18.01.21 - 11.01.1922 |
| Besonderheiten: |
Zwischenraumstreiche (Traditor) auf dem rechten Flankenwällen
Panzerbeobachtungstürme an den Schulterpunkten rechte Anschlußbatterie wird durch eine Bahnlinie durchschnitten
|

Zeichnungen einer Zwischenraumstreiche wie sie auch in Köln zum Einsatz gekommen sein kann:
 Draufsicht
|
 Geschützseitenansicht.
|
 Innenansicht
|
 Schnittzeichnung
|

Zeichnung einer Beobachtungsglocke wie sie auch in Köln zum Einsatz gekommen sein kann:

Fotos aus der Entfestigungszeit mit Genehmigung des Auswärtigen Amtes/Politisches Archiv
Die Entfestigungsakten mit entsprechender Text -und Fotodokumentation des Entfestigungsamtes lagern heute in Berlin.
Die parallel geführten Entfestigungsakten der Interalliierten Kontrollkomission (IAKK) lagern heute bei der UN in Genf.
 Kehlkaserne mit Grabenanlage
|
 rechter Frontgraben, mit rechter Schulter- und Spitzengrabenwehr
|
 Kehlkaserne mit abgeräumter Dachfläche Graben zum Teil verfüllt
|
 nach der Entfestigung...
|

Die Quelle des Fotos ist der Redaktion bekannt.
 Zwischenraumstreiche des Fort VII während der Besatzungszeit.
|

Zurück zu: Neudeutsche Befestigung 1815-1914 
|